Les plateaux

Le studio 9h10 c'est deux plateaux pour vos tournages et vos shooting avec des équipements de pointes et des caractéristiques qui font la différence. Ils peuvent aussi se transformer pour vos événements en un lieu accueillant. Soit l'un, soit l'autre, soit les deux.

Dès que vous passez la porte, vous êtes dans une maison en pierre comme on en trouve à la campagne. La cour pavée est accessible aux véhicules motorisée, grâce à son grand porche. De plain-pied avec le plateau « Cyclo », vous pouvez faire entrer moto et voiture sur le plateau. Au 1er étage avec le plateau « Daylight » vous pouvez profiter de la cuisine double bar et des terrasses avec plancha.

Un plateau de 100 m2 totalement occultable avec cyclo blanc 4 faces, rideaux noirs coulissables, grid à 4 m, trappe pour une prise de vues en plongée, ses loges, son espace d’accueil, son accès plain-pied et plus encore.

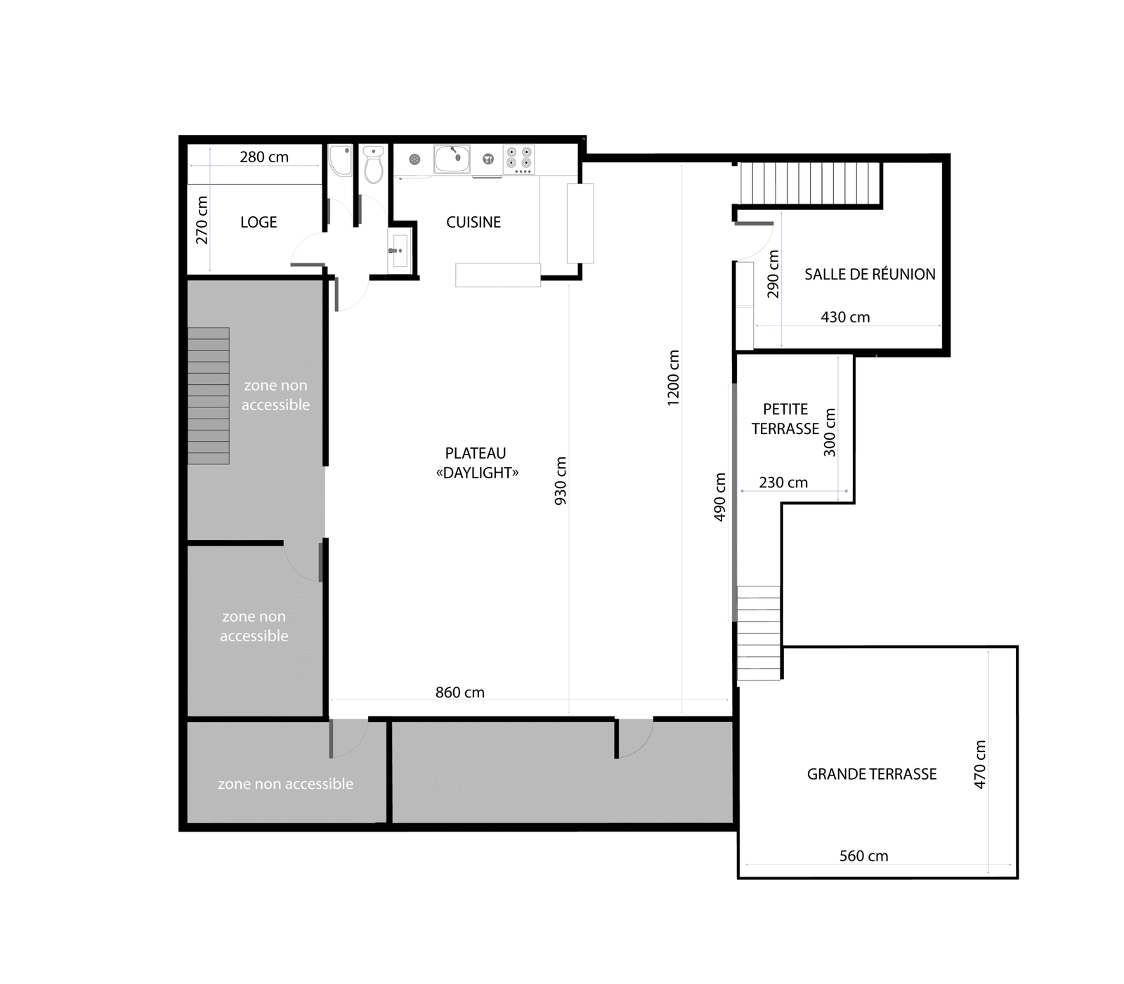
Plateau "Daylight"
Plateau "Daylight"

Un plateau au 1e étage baigné par la lumière du jour de 80m2 avec ses velux occultables et sa baie vitrée surmontée d’une verrière géométrique. Vous profitez aussi d’une cuisine avec ses deux bars, d’une loge avec douche, d’une salle de réunion, d’un accès aux terrasses, etc.

Visite virtuelle du studio

Loading...