Le plateau « Daylight »

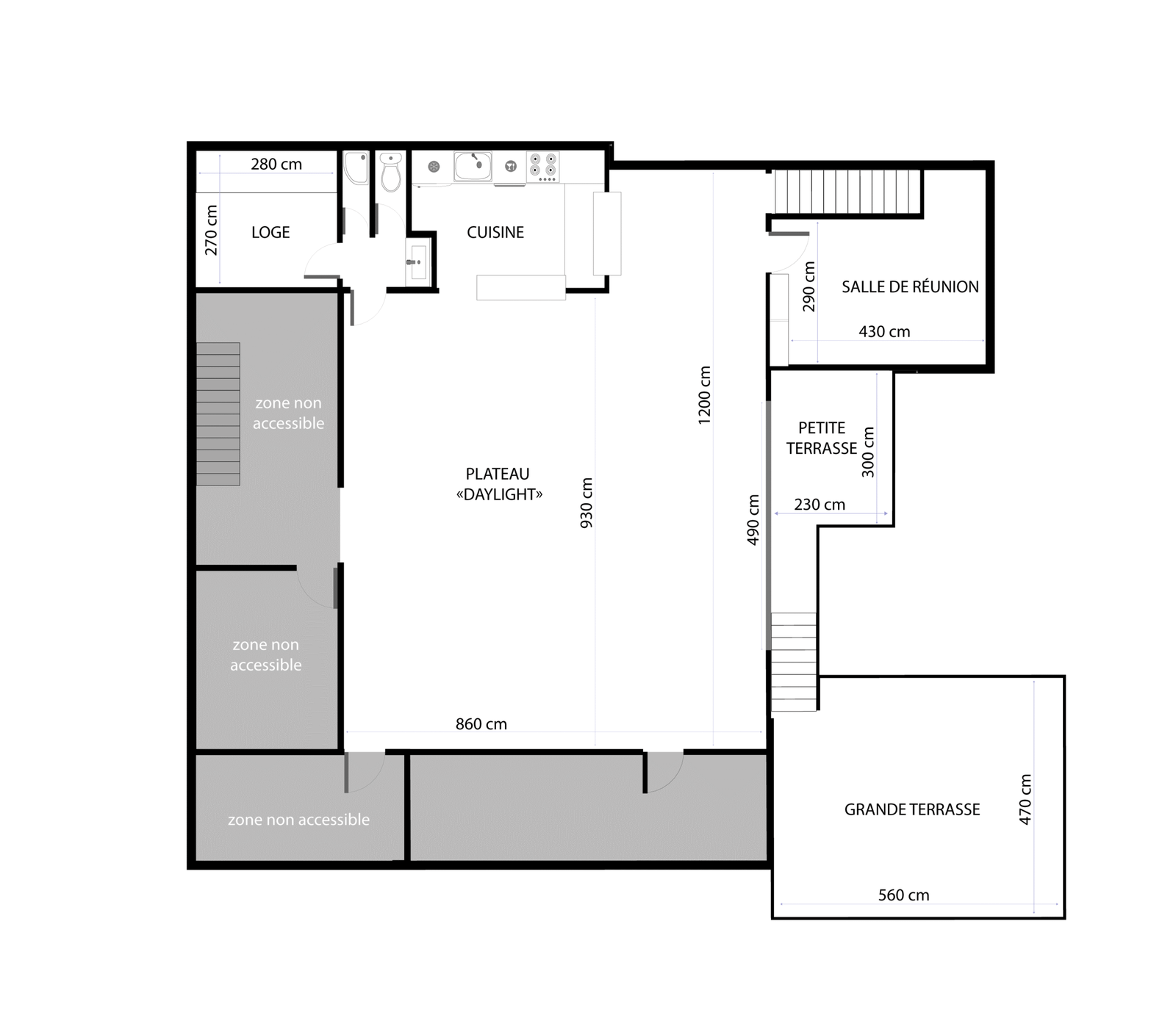
Plateau lumière du jour occultable de 80m2, disposant d’une cuisine entièrement équipée, d’une loge avec douche, d’une salle de réunion, d’un accès aux terrasses.

Location plateau nu : 600 € H.T.

Lors de vos shooting photo ou tournages, vous pouvez profiter de la lumière du jour qui remplit ce plateau pour construire vos images ou bien totalement occulter la lumière du jour pour une utilisation en lumière artificielle.

Situé au 1er étage, le plateau dispose d’une cuisine entièrement équipée où vous pouvez préparer le catering ou bien cuisiner pour vos shooting culinaires.

Vous disposez également d’une spacieuse loge attenante avec douche, d’une salle de réunion, d’un accès aux terrasses extérieures et d’un accès internet wifi fibre optique.

Besoin d’un autre plateau, d’une loge supplémentaire, d’un espace d’accueil, de plateaux repas, de mobilier ou location de matériel…

Contactez-nous >

Marc 

marc@9h10.fr

+33 673 479 789

Franck 

franck@9h10.fr 

+33 611 881 457

Plan du plateau & 1e étage

Caractéristiques techniques

  • Plateau lumière du jour occultable ou diffusable 80m2 au sol (9,5m x 8,5m)
  • Puissance électrique triphasé de 30Kw (PC16)
  • Hauteur de 4 mètres
  • Cuisine entièrement équipée de 13m2
  • Loge maquillage avec douche et portant de 15m2
  • Salle de réunion de 13m2
  • Internet fibre Wifi 7
  • Accès terrasses
  • Consommation électrique incluse

Besoin d’un autre plateau, d’une loge supplémentaire, d’un espace d’accueil, de plateaux repas, de mobilier ou location de matériel… Contactez-nous ! 

Marc >

marc@9h10.fr

+33 673 479 789

Franck >

franck@9h10.fr 

+33 611 881 457

Visite virtuelle du studio

Loading...

Loge & salle de réunion